Paritalo – Ulvila, Hakanpää
Pohjolantie 7 A
Toteutetaanko kotihaaveesi?
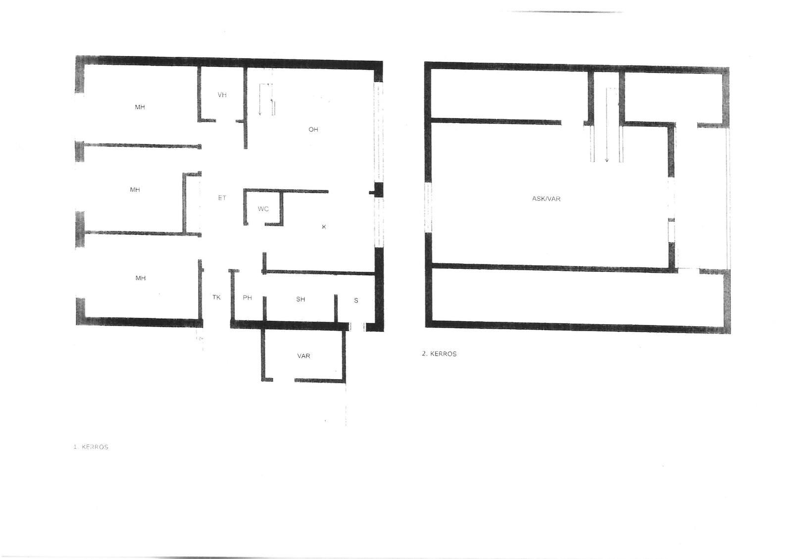
Hakanpään alueella Ulvilassa sijaitsee tämä sopuhintainen paritaloasunto, jossa on alakerrassa makuuhuoneita kolme ja yläkerta on yhtenä tilana (n. 50 neliötä). Yläkertaan on mahdollista tehdä ainakin yksi makuuhuone lisää ja wc:n rakentaminenkin yläkertaan on mahdollista.
Asunnossa on upea TULIKIVI -takkaleivinuuni ja katolla aurinkopaneelit lämmityskustannuksia pienentämässä. Valokuituliittymä löytyy myös kohteesta.
Tervetuloa tutustumaan kanssani!
Harri Boelius, LKV
P. 044 361 0350
harri.boelius@haavelkv.fi
- Huoneiston kuvaus: Ak; 3 mh, oh, k, pukuh, s, ph, wc, vh. Yk; avointa tilaa
- Asuinpinta-ala: 136,0 m²
- Hinta: 69 000,00 €
- Osoite: Pohjolantie 7 A, 28400 Ulvila
Jaa kohde
Kuvat
Kohteen tiedot
Kustannukset
- Hinta: 69 000,00 €
- Kiinteistövero: 233,00 €
- Muut maksut: Sähkön kulutus sisältää käyttösähkön. Vesikulutuksen mukaan. Jätehuolto tyhjennyskertojen mukaan.
Kohteen perustiedot
- Tyyppi: Paritalo
- Sijainti: Ulvila, Hakanpää
- Maa: Suomi
- Vapautuu: viimeistään 2 kk kaupasta
- Käyttöönottovuosi: 1977
- Huoneiston kuvaus: Ak; 3 mh, oh, k, pukuh, s, ph, wc, vh. Yk; avointa tilaa
- Huoneiden lukumäärä: 5 h
- Asuinpinta-ala: 136,0 m²
- Kokonaispinta-ala: 144,0 m²
- Muiden tilojen pinta-ala: 8,0 m²
- Kerrossijainti: 1 / 2
- Yleiskunto: tyydyttävä
Tontti
- Tontin omistus: oma
- Tontin pinta-ala: 1 000,0 m²
- Tontin tyyppi: Tasamaatontti
- Kaavoitustilanne: Asemakaava
Asunnon lisätiedot
- Lämmitysjärjestelmä: aurinkolämpö, sähkö
- Tulisija: takka
- Muiden tilojen kuvaus: Avoin lämmin yläkerta, jonne mahdollista rakentaa erilliset makuuhuoneet ja jopa wc.
Varustelu
- WC:n kuvaus: Uusittu 2015
Palvelut ja liikenneyhteydet
- Koulut: Friitalan keskustassa
- Päiväkodit: Friitalan keskustassa
- Palvelut: Friitalan keskustassa
- Liikenneyhteydet: Bussi, oma auto
Kartta